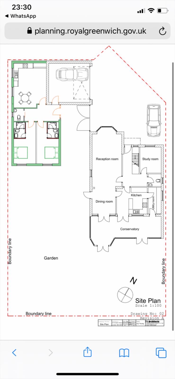
房子位於倫敦2/3區,23 Crosier Close是一處地理位置良好、交通便利、環境清幽宜居的中型獨立房產,對於想在倫敦格林威治區安家落戶的家庭來說,是一個非常不錯的選擇。週邊生活配套設施一應俱全,距離格林威治公園、伊頓公園等大型公園也僅幾分鐘路程,是居家生活的絕佳選擇。
建案特色
建案推薦
10分鐘步行可抵達所有商店,包括所有大型超市如Marks N Spencer、Sainsbury、Lidl、Aldi、Tesco、Asda等,以及Ikea、Primark、Westfields等大型商店。
10分鐘步行即可到達3家正宗中國超市,提供新鮮海鮮
半小時內可到達3家正宗中餐館- 供應點心及廣東/四川/上海風味美食!(無需前往倫敦唐人街!)
從北格林威治地鐵站到倫敦唐人街僅25分鐘車程。
距離O2 Millennium Dome 僅15分鐘路程。 
建案資源