介紹的計畫就位於倫敦東南區的富人區,非常適合家庭居住,附近更有步行可達的頂級私校德威學院
Dulwich Village是一個綠意盎然,景色宜人的社區,是倫敦南部公認的綠色植物和傳統建築的綠洲。
專案附近20分鐘步行距離內有7所私校。該地區在愛德華時期成立了許多學校,包括著名的德威學院。
地區超市、餐廳及咖啡館等應有盡有。德威畫廊、公園、運動俱樂部都為家庭提供絕佳的活動場地。
專案的交通十分便利,距離最近火車站North Dulwich 步行即可到達。

介紹的計畫就位於倫敦東南區的富人區,非常適合家庭居住,附近更有步行可達的頂級私校德威學院
Dulwich Village是一個綠意盎然,景色宜人的社區,是倫敦南部公認的綠色植物和傳統建築的綠洲。
專案附近20分鐘步行距離內有7所私校。該地區在愛德華時期成立了許多學校,包括著名的德威學院。
地區超市、餐廳及咖啡館等應有盡有。德威畫廊、公園、運動俱樂部都為家庭提供絕佳的活動場地。
專案的交通十分便利,距離最近火車站North Dulwich 步行即可到達。

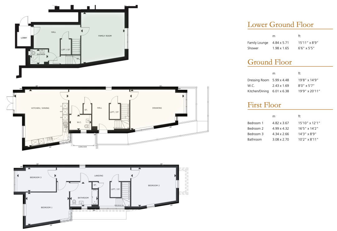
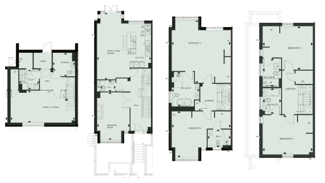
Soane Place項目,內部提供地下停車位。室內設計清新淡雅,以簡潔的白色為主色調,點綴安靜的藍色和生機的植物綠蔭,光線充足,舒適宜人。同時室內設有 寬敞的觀影室,是休閒放鬆的好選擇。臥室空間開放,搭配原木色地板和地毯,營造出溫馨靜謐的居住感。屋頂還設有獨享的露台空間,可依自我喜好進行個性設計。

德威村轄區內有許多地方可以探索,其中以其著名的藝術畫廊和開放的綠色空間,擁有花園、划船湖和涼亭,是週末享受陽光的好去處。
附近的達利奇運動俱樂部也提供板球、槌球、曲棍球、壁球或網球 這是英式傳統運動的最佳代表,十分方便居民使用。

Soane Place所處的社區有著田園般的生活,其周圍有著令人嚮往的教育資源。
德威村擁有多所被評為Outstanding的學校,年齡跨度從4歲到18歲,基本上貫徹了一個孩子從幼兒園到18歲的教育過程。
其中著名的私立學校德威公學位於計畫附近,步行即可到達。德威學院是著名的貴族男校,在英國私立、公立學校排名27,教育程度值得信賴。
