都說 penthouse 珍貴,位於全球頂級城市市中心的 penthouse 那更是錯過便無的存在。柏克萊集團在倫敦市中心 Zone 1 開發打造的專案250 City Road 便實現了有眼光買家的夢想。

City Road 專案位於倫敦市中心一Islington區域,在Angel 和Old Street 地鐵站中間,步行距離緊靠老金融城,也是倫敦政府重點打造的科技城核心位置,專案擁有尊貴的郵編EC1,也是這座城市最具發展潛力的區塊。
都說 penthouse 珍貴,位於全球頂級城市市中心的 penthouse 那更是錯過便無的存在。柏克萊集團在倫敦市中心 Zone 1 開發打造的專案250 City Road 便實現了有眼光買家的夢想。

City Road 專案位於倫敦市中心一Islington區域,在Angel 和Old Street 地鐵站中間,步行距離緊靠老金融城,也是倫敦政府重點打造的科技城核心位置,專案擁有尊貴的郵編EC1,也是這座城市最具發展潛力的區塊。
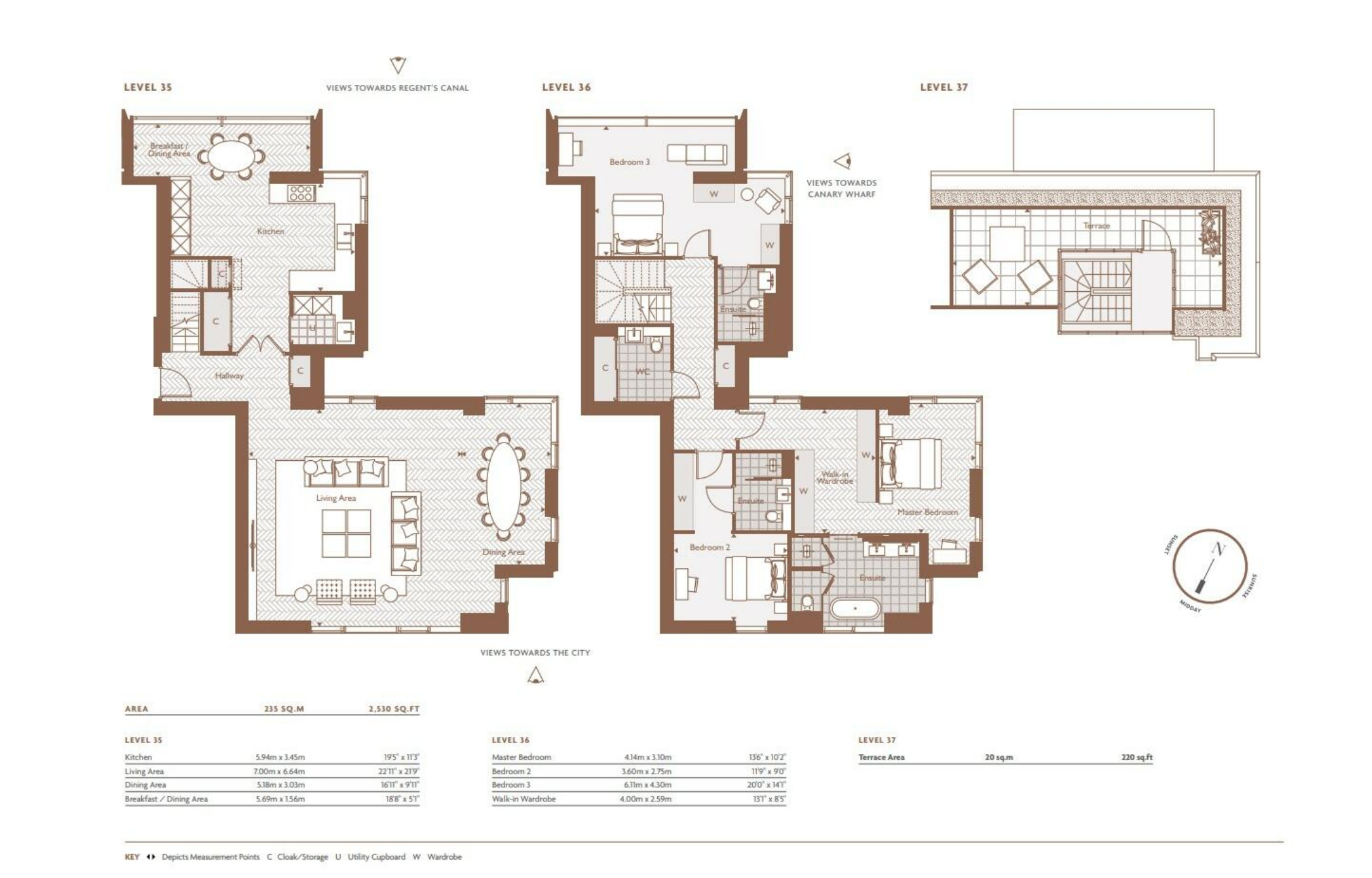
該樓層僅有三戶,三梯三戶的配比絕對保障了業主的隱私性;該戶型的室內淨套面積達2,950sqft (274平方)在倫敦一區這樣寸土寸金的地方簡直是奢華。同時這套 penthouse 的平均尺價僅為 £1,847.5在此地段真正做到了物超所值。
一直和柏克萊保持良好合作的世界頂尖設計師 Foster & Partner 採用了分割式設計,開放式廚房和客廳分處兩端互不打擾。不管是好友 Party 還是社交聚會,都最大程度地確保了自由舒適的空間距離。
客廳有全牆落地窗,超廣角視野能提升整體空間氣質,也保證了房間內的採光。

一體化廚房採用英式島台設計,設備全套選用德國頂級家電品牌米勒 Miele, 體現了業主尊貴的身份品質。黃銅精加工門配件貫穿整個廚房,和用餐廳都帶有落地窗,與客廳落地窗自然連成一線。

煙霧/熱偵測器由電源供電,並附有電池備援。

來到 36層,三臥四衛獨享此層的概念將隱密性體現的淋漓盡致。臥室高品質訂製衣櫃,並嵌有整合式感應燈。主臥室浴室採用了白石複合獨立浴缸,壁掛式黃銅飾面和石頭洗手盆。

所有臥室和起居區都配有電話點,Sky有線網適合多房間使用。同時,電視TV/調頻FM/衛星Satellite/天空高清Sky + HD/熱鳥Hotbird也一應俱全。

室內都採用地暖和清風系統,大樓提供中央暖氣和熱水,頂層penthouse也享有單獨的直達供應。

23個平方的空間除了提供足夠的自由活動區域,也給了業主一覽眾山小的獨家景觀。
