作為一個位於利物浦市中心的高品質住所,Silk House具有卓越的投資價值。它的地理位置和高端設施使其成為理想的出租物業,同時隨著城市發展,其房產價值也有望增值。

 
         
         
                     
                     
                     
                    作為一個位於利物浦市中心的高品質住所,Silk House具有卓越的投資價值。它的地理位置和高端設施使其成為理想的出租物業,同時隨著城市發展,其房產價值也有望增值。

Silk House提供多種高端設施,包括一個設備齊全的健身房、帶私人露台的屋頂花園、24小時禮賓服務、保全服務以及地下停車場等。
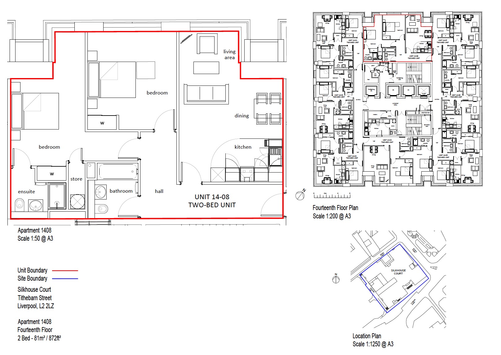
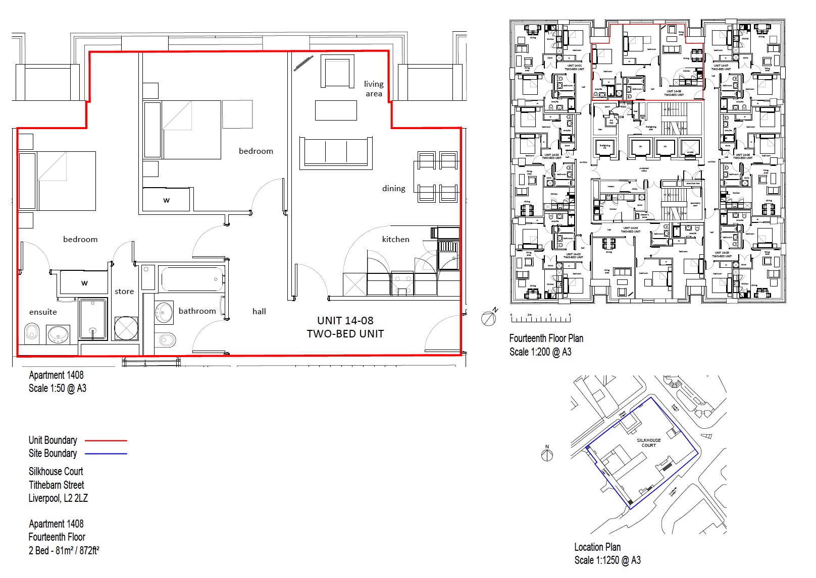
Silk House是由Fortis Development開發的現代化高層公寓大樓,擁有現代化的建築設計和高品質的內部裝修,每個公寓都有寬敞的房間和美麗的城市景觀。靠近利物浦大學,利物浦大學是英國著名的公立研究型大學之一,位於利物浦市中心以南處,步行或騎車可輕鬆抵達。從Silk House到利物浦大學開車可達,非常方便。因此,如果您是利物浦大學的學生或工作人員,Silk House可能是一個理想的住所選擇。
 
                                                                